Overkill for my Small Room? - Advice Needed

agarwalro

agarwalro

Audioholic Ninja
I ended up doing an about face and decided to go with the Gamma 18! After doing some more research and listening to your suggestions, I think the sealed route is better for my room and what I'm looking for in terms of sound (tight clear bass). I will be sure to post some impressions when it arrives!
Awesome! Looking forward to your post.
 
TheSoundLounge

TheSoundLounge

Enthusiast
View attachment 16382 View attachment 16383 View attachment 16384 View attachment 16385 View attachment 16386 View attachment 16387 View attachment 16388 I own the LV12-R and am very happy with it. Its a very articulate sub with nice tight bass with the ability to dig deep to 19 Hz with authority. For $1200, you can own two and smooth out the bass in the room. Here are some pics of my setup.
Just a thought.
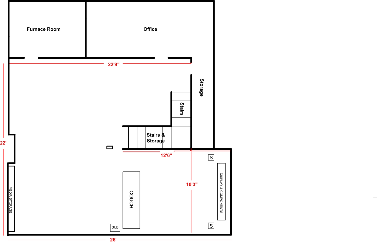
After seeing your photos and diagram If I had your basement, I would place the main on the South wall (Left/Mid Portion) so the mains are not so close to your walls and gives you a wider sound stage. If that make sense lol
Have you tried that yet?
 
3db

3db

Audioholic Slumlord
Just a thought.
After seeing your photos and diagram If I had your basement, I would place the main on the South wall (Left/Mid Portion) so the mains are not so close to your walls and gives you a wider sound stage. If that make sense lol
Have you tried that yet?
My girls needed a long run of the basement to be unfettered for dance practice and I did not want to buy stands for the surround speakers. I get a good soundstage with the setup as it is . :) Thanks for the suggestion.
 
TheSoundLounge

TheSoundLounge

Enthusiast
My girls needed a long run of the basement to be unfettered for dance practice and I did not want to buy stands for the surround speakers. I get a good soundstage with the setup as it is . :) Thanks for the suggestion.
Ah I see, I was thinking you had the basement all to your self like most guys lol
Anyways thanks for sharing your set up :)
 
djreef

djreef

Audioholic Chief
I ended up doing an about face and decided to go with the Gamma 18! After doing some more research and listening to your suggestions, I think the sealed route is better for my room and what I'm looking for in terms of sound (tight clear bass). I will be sure to post some impressions when it arrives!
So, how did it go?
 
newsletter

  • RBHsound.com
  • BlueJeansCable.com
  • SVS Sound Subwoofers
  • Experience the Martin Logan Montis
Top